Focacone - Yueyi Wu

California Polytechnic State University, San Luis Obispo

Stephen Phillips

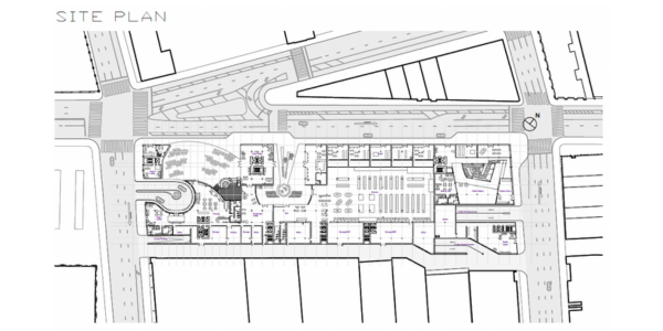
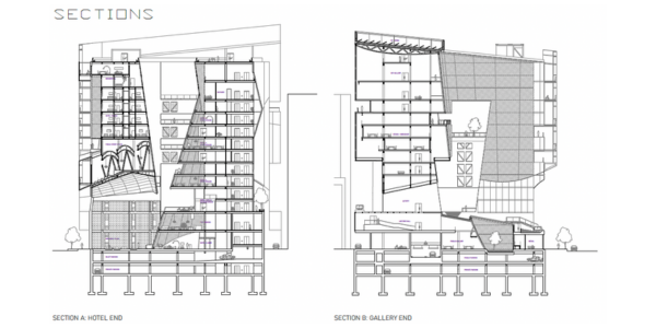
This project is a mixed-use mid-rise complex that responds to the multi-layered, three-dimensional urban context of Downtown Los Angeles. The building attracts a broad spectrum of users, including visitors, locals, families, and individual residents, fostering a vibrant artist community. Its massing is driven by the subtle use of conical geometries, generating spatial variety in a modular system. The program includes event halls and classrooms, affordable housing, commercial spaces, two hotels, a gallery, and a range of community services and social areas. Green and outdoor spaces are integrated at multiple levels, while the building’s light, bright materials, and color promote a sense of openness and vitality. The density of the programs generates the social intensity that sustains urban life and amplifies cultural.