Student Village: Dos Mantos
Cristian I. Benoit
Collage of The Canyons
Advisor/Instructor: Thomas V. Stallman
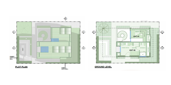
Dos Mantos is a site-responsive student housing project developed through the Bachelor of Science in Building Performance program at College of the Canyons. It features two 200 sq. ft. units (one partially earth-sheltered, the other elevated for ADA accessibility) linked by a shared solar chimney that enables passive ventilation and thermal regulation.
The design integrates rammed earth perimeter walls and infill for fire resistance, thermal mass, and sound buffering, critical due to its location beside a busy college parking lot and inspired by recent regional wildfires. A CSEB-RE hybrid wall system, built using the TerraLink System, supports low-carbon, high-performance construction.
Solar panels atop the structures generate renewable energy, while green walls on the east and west reduce heat gain. A cistern-fed rainwater capture system collects runoff from both the roofs and the surrounding landscape, supporting irrigation and passive cooling.
At the center of the site is a community fire pit, shaded by the upper unit’s cantilever, and adjacent to a cistern-fed rainwater capture system, reinforcing both environmental function and student interaction. Dos Mantos proposes a compact, climate-resilient model for student housing rooted in performance, affordability, and place-based design.
We find ourselves at a critical moment when architecture and urban planning must address the challenges imposed by the Anthropocene on the natural world. How do we create the paradigm shift necessary to implement sustainable solutions for cities that have paved over—and, until recently, largely ignored—their life-giving ecosystems? A pressing example is Los Angeles, a metropolis shaped by rapid development and infrastructure expansion, often at the expense of its natural water sources. The challenge now is to reconcile this history with the urgent need for sustainable urban growth.
Our case study were the Wells Fargo Twin Towers, located on Bunker Hill in Downtown Los Angeles at the intersection of Grand Avenue and 3rd Street. These two towers, defined by their trapezoidal floor plans, have remained largely occupied by financial institutions. However, the pandemic led to widespread office vacancies, leaving many spaces underutilized. At the same time, Los Angeles is facing a severe housing crisis, as the demand for real estate far outpaces the available supply.
